Desidaily Interior Design Alliance

Immersion in Nature
The dust falls into a mound of light and time
Mist and dew dip into the yellow earth
Shenzhen is a steel and concrete castle. The hustle and bustle of the city, the bright lights. DDD Creative was commissioned by the owner to design a space for an authentic Thai massage and spa experience in the middle of the city.

Most people’s impression of Thailand still remains in greenery, wood carvings and elephants, but in fact there are many neglected cultural aspects that have not been explored, such as primitive villages, historical relics, and the yellow earth walls are the marks of history.


▲The rustic materials and colorful elements | Photo Source
Chiang Mai is the ancient source of Thai massage and SPA. The design is based on the red bricks of the ancient city walls of Chiang Mai, and the waterscape structure of the staggered layers echoes the tropical greenery that appears unexpectedly. The design is based on the red brick elements of the ancient city of Chiang Mai, and the staggered and cascading water features are echoed by the tropical greenery.

▲The building is a container for capturing light | Image Source


▲Red brick on the facade
The entrance pre-entry room is used as a waiting area and display area to isolate the noisy sound from the outdoor street. The light is reflected on the red brick wall through the blurred transparency of the round window of the main door and the long rainbow glass.



▲Light gives soul to the space
The overall tone of the space is “loess dust”, and the same color of retro materials such as red brick, thin rock slab, terrazzo, red dyed cloth and earth-red antique tiles are intermingled to depict the ancient city of Lanna.

▲The main theme of the event is “The New Year”.

▲Foot purification area
The footbath with tropical rainforest water view, the white wisteria on the top and the clouds refracting infinitely through the mirror, feels like being in an ancient garden.

▲Materials inspiration|Figure Source



▲Rattan furniture

▲Inspiration for hanging curtain design|Image source

▲Rough linen printed hanging curtain
The design of the wall is inspired by the tropical plants, the native Chiang Mai wood carvings, the herbs and utensils. The rattan furniture and screen partition, thick linen printed hanging curtain, water lamp floating on the water mist and other soft furnishings outline the local local life atmosphere of the past.

▲The dark brown herbal medicine storage bottle




▲Waiting area
The air in the lounge area smells of lemongrass, and the sound of running water is heard, with the regular dark brown herbal storage bottle as a semi-partition. The main feature of the project is that it is a good way to make the best use of the space while preserving the spacious view.


▲Front Desk
Stepping onto the soft carpet to the second floor, the design borrows mirrors, transparent glass, heavy fabric curtains and semi-transparent blinds. The design uses mirrors, transparent glass, heavy fabric curtains and semi-transparent blinds to switch between different textures of the floor, deliberately creating an illusion of the senses, so that people lose themselves in the environment and focus only on their own feelings at the moment.


The top of the staircase is deliberately pressed down to set up a staggered red brick pool to enhance the sense of shuttle between the ancient buildings. The overflowing clouds at the top slowly float down, and the airflow keeps changing as people walk around.



▲Staggered red brick pool
The sunlight outside the window penetrates into the pool through the gap of wooden shutters, reflecting on the tropical plants and dyed cloth, melting in the water mist, pulling the memory back to that side of the dust.

▲Natural aromatic scent inspiration|Image source

▲Mist pool installation
The dark earthy red space emits the scent of lemongrass aroma, and the fine birdsong and the sound of running water echoes infinitely. The design is intentional, mobilizing the senses of sight, smell and hearing to calm the inner waves. The design of the hotel is a prelude to the journey of ancient SPA, which is a quiet and peaceful place in the ancient city.


▲Heavy curtain and dim light
The massage room and SPA room use heavy curtains and dim lighting to create a sense of privacy and security. The white space is deliberately left so that people can close their eyes and put their bodies and minds into the physical journey of Thai SPA.


▲Massage room installation art

▲SPA room|Quiet body journey
In the brand building, DDDD creative company wants to give the brand a trace and experience of the ancient capital of Lanna, Thailand, to carry the yellow earth of the past mark – that is, “LOESS”. The brand name LOESSSPA is the result of measuring the thickness of time and memory.

The main color of the city wall is the earthy yellow color of the brand, and the silhouette of the light on the city wall through the shade of the trees is the main visual of the brand.


▲The main color of the brand
The product packaging uses the brush painting of tropical plants to balance the heaviness of the main color of the city wall and make the brand content more dynamic and rich.


▲Brand Visual

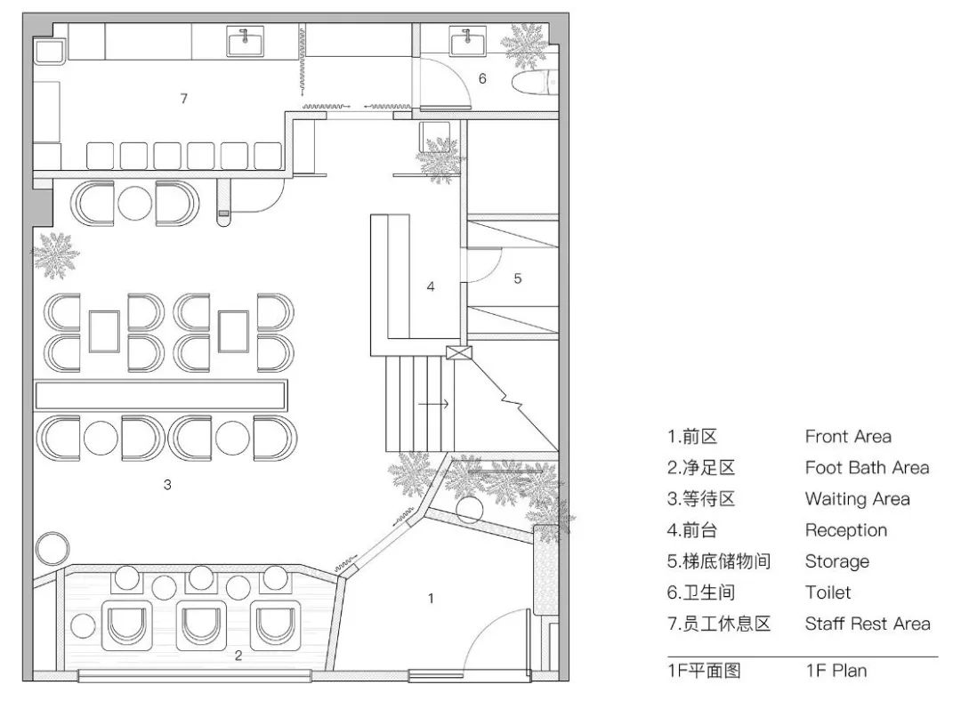
▲1F floor plan

▲2F floor plan

▲2F elevation drawing
Project Name|LOESSSPA Lanyu
Project Location|Shenzhen, China
Project Type|Thai Spa
Project Area|283㎡
Completion Date|2021.1
Design scope|Brand strategy and positioning, brand visual system, brand product packaging, space design, soft furnishing design, lighting design
Design Company|DDDD
Creative Company (DDDD Creative Company)
Creative Design|John Sun Sun Weizhong
Brand Positioning|Renee Zhu 朱尔年
Visual Design|Hua Sen
Project follow-up|Liu He
Deepening design|Qia Qia, Ma Xiaoting, Chen Yonglin
Project Photography|Wu Jianquan
Main Material|Tile:Eagle Ceramic Thin Rock Panel:Y/A VENEER SLATE
Terrazzo:LVBA MOSHI Flooring:Armstrong

John Sun
DDDD Founder and Lead Designer

DDDD, the brand name “DDDD” in Chinese. Pronounced in Cantonese, that is, the translation of the opening four notes of Beethoven’s Fifth Symphony “Destiny” extended. The creation of the Symphony of Destiny is Beethoven’s break with fate. It is a great work of music, a work with strong philosophy and artistic style. A musical work, note to note, is equal, which means that only the cooperation and understanding of full trust can create a successful commercial design. Inspired by this musical work, DDDD hopes to convey the idea that space is not only a physical existence but also an expression of emotion through design. The opening four notes of “Destiny” are often used in the music of grand entrances, and also express that design needs to be free from the constraints of thinking in order to produce works that present amazing results. the DDDD team focuses on breaking the traditional thinking and bringing vitality and vigor into commercial spaces. We promote communication and happiness through design, and pay more attention to the pursuit of the real connotation of design in meeting the aesthetic level.
WOWOW Faucets




